Nueva Sede Ministerio de Salud GCABA_1er Premio
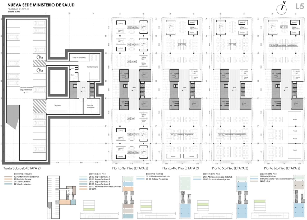
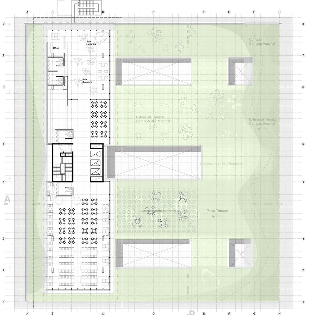
La nueva sede del Ministerio de Salud, se plantea como un edificio transparente que acerca las labores del ministerio al ciudadano, a la ves, no genera sentimiento de alienación en el empleado, que por un lado dispone de amplias visuales y referencias de su entorno y por otro la posibilidad de acceder a patios y terrazas verdes, como una continuidad del paisaje natural y urbano del sitio.
CONCURSOS
Arq. Jorge Taberna - Arq. Walter Casola - Arq. Claudio Carranza - Arq. Pablo Suarez
































