Museo de Bellas Artes Castagnino_ Propuesta Concurso
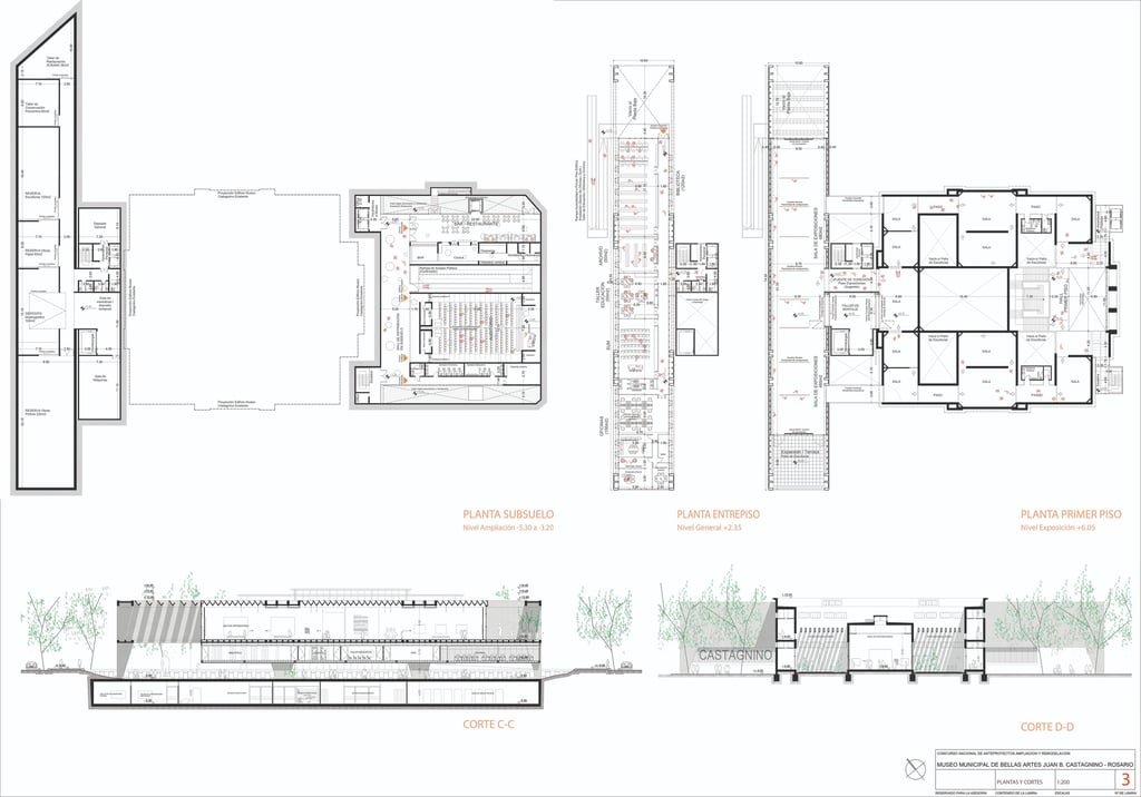
El concurso propone la ampliación del histórico musea de Bellas Artes Castagnino, ubicado en Rosario. La propuesta se fundamenta en una restauración cuidadosa del edificio existente y un anexo con el nuevo programa pensado como una pieza que se inserta en el paisaje del predio.
CONCURSOS
Equipo: Arq. Jorge Taberna - Arq. Walter Casola - Arq. Claudio Carranza - Arq. Pablo Suarez - Arq. Macarena Bressan


















