Centro de convenciones de Alta Gracia
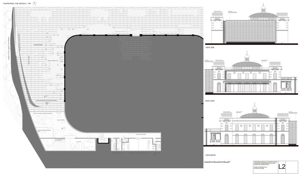
El concurso plantea la restauración y puesta en valor del ex casino del Sierras Hotel para convertirlo en un centro de convenciones y exposiciones.
CONCURSOS
Equipo de proyecto: Mg. Arq. Jorge Taberna - Arq. Claudio Carranza - Arq. Walter Casola - Arq. Pablo Suarez












